EFH Peruski Istrien Meerblick
- €219.000
Übersicht
- Einfamilienhaus
- 87 m²
- 2026
Beschreibung
Modernes Neubau-Ferienhaus – schlüsselfertig, mit Grundstück & vielen Extras
Zum Verkauf steht ein hochwertiges, modernes Ferienhaus, das Erholung, Komfort und eine hervorragende Infrastruktur ideal miteinander verbindet. Das Grundstück ist vollständig erschlossen – Strom- und Wasseranschlüsse sind bereits vorhanden.
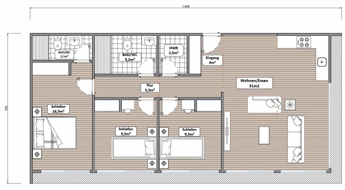
Das Haus überzeugt durch eine durchdachte Raumaufteilung: Geplant sind ca. 87 m² Wohnfläche mit drei Schlafzimmern, zwei stilvollen Badezimmern sowie einem großzügigen, offenen Wohn- und Essbereich inklusive moderner, voll ausgestatteter Küche.
Für ein angenehmes Wohnklima sorgt eine Klimaanlage mit Heiz- und Kühlfunktion. Die Immobilie wird schlüsselfertig übergeben (ohne Möblierung) und eignet sich sowohl zur Eigennutzung als auch optimal für die Ferienvermietung.
Im Kaufpreis enthalten:
Schlüsselfertiges Haus
Grundstück mit ca. 599 m²
Alle notwendigen Anschlüsse
Eine Möblierung kann auf Wunsch gegen Aufpreis realisiert werden.
Zusätzlich bieten wir Ihnen optionale Ausstattungen wie Carport, Zaunanlagen, Garten- und Landschaftsgestaltung sowie einen Swimmingpool – individuell nach Ihren Vorstellungen.
Als zugelassener Versicherungs- und Finanzmakler unterstützen wir Sie außerdem mit maßgeschneiderten Finanzierungslösungen über deutsche und kroatische Banken.
Jetzt die Chance nutzen und in Ihre eigene Ferienimmobilie investieren!
Unsere weiteren Dienstleistungen für Sie aus unserem Netzwerk
Deutschsprachige Rechtsanwalt- und Notarkanzleien
Finanzierungsvermittlung Deutsch/Kroatische Banken
Zugelassener Versicherungsmakler Deutschland/Kroatien
Immobilien von Umag bis Dubrovnik.
Erledigung aller Behördengänge wie OIB, Wohnsitz, Strom, Wasser, Telefon etc
Örtliche Handwerker Vermittlung für Renovierungen und Sanierungen.
Hausmeister-Tätigkeiten mit Komplett-Service bei Vermietung an Feriengäste.
Objekt- und Verwaltungsservice.
Handwerkerservice vor Ort. Alles aus einer Hand
Komplettübernahme von Renovierung und Sanierungen
Elektriker, Heizungs- und Klimabauinstallation
Maler, Bodenleger
Garten und Landschaftsbauer
Küchen-Möbel-Montage
Pflasterer, Steinleger
Peruški – ein charmantes Küstendorf in Istrien – begeistert mit seiner ruhigen Lage, traditioneller Architektur und einer traumhaften mediterranen Umgebung.
Zum Verkauf steht ein attraktives Baugrundstück inkl. Schlüsselfertigem Haus in Peruški, nur ca. 20 km von Pula entfernt und unweit des Meeres gelegen. Der Ort besticht durch seinen ursprünglichen Charakter mit historischen, teils über 200 Jahre alten Steinhäusern sowie einer idyllischen Landschaft entlang der Ostküste Istriens.
Das Grundstück überzeugt mit einem herrlichen Meerblick und bietet ideale Voraussetzungen für den Bau eines Einfamilienhauses oder einer Immobilie zur touristischen Nutzung. Die Zufahrt ist asphaltiert, und alle wichtigen Anschlüsse befinden sich bereits am Grundstück – beste Bedingungen für eine unkomplizierte Bebauung.
Eine seltene Gelegenheit für alle, die sich den Traum vom eigenen Rückzugsort am Mittelmeer erfüllen möchten. Die nahegelegenen Strände sind meist ruhig und wenig frequentiert und laden zum Entspannen und Genießen ein.
Im Preis ist enthalten:
• Grundstück mit 599m²
• Haus je nach Grösse und Typ
• Architektenleistungen
• Bauantrag
• Statik
• Pläne
• Ausführungspläne
• Berechnungen
• Bauleitung bis zur Schlüsselübergabe
• Kommunikation auf/in Deutsch
• Besprechungen/Baudurchsprachen vor Ort
• Teilnahme per WhatsApp
• Regelmäßige Übersendung von Fotos und Videos
• Bautagebuch
• Bau-Video-Tagebuch
• Erdarbeiten
• Anschluss an Zu und Abwasser
• Beton-Bodenplatte
• Estrich
• Dacheindeckung-Dachabdichtung je nach Haustyp
• Innenputz
• Aussenputz
• Spenglerarbeiten
• PVC-Fenster mit 2-fach Isolier-Verglasung
• PVC-Haustür mit Sicherheitsschloss
• Innentüren mit Röhrenspaneinlage
• Klimaanlage in Wohnen-Essen-Schlafen
• Komplette Sanitäre Installation
• Dusche
• Waschbecken in Bad/WC
• WC mit Absenkautomatik
• Komplette Elektro-Installation
• Bodenbelag in Vinyl mit Fliesen/Parkett-Optik. Bad/WC in Fliesen
• Alle Räume sind gemalert
• Waschmaschinenanschluss
• Küche mit E-Herd/Cerankochfeld/Backofen
• Geschirrspüler
• Kühlschrank mit Gefrierkombination
Nicht enthalten im Preis sind:
Swimming-Pool
Aussenanlage mit Begrünung/Bepflasterung
Möbel/Inventar/Deko
Carport/Garage
Maklercourtage 3% zzgl. gesetzl MwSt.
Adresse
Öffnen in Google Maps- Ort: Peruski
- PLZ: 52208
- Land: Kroatien
Details
Updated on April 9, 2026 at 1:39 pm- Property ID HZ230283
- Preis €219.000
- Wohnfläche 87 m²
- Grundstücksfläche 599 m²
- Zimmer 4
- Year Built 2026
- Immobilienart Einfamilienhaus
- Status Zu Verkaufen
Zusätzliche Details
- Lage/Gebiet Wohngebiet
- Käuferprovision 3,57
- MwSt.-Satz 19 %
- Wohnfläche 87 m²
- Befeuerung Elektro













