EFH Krsan 10 Min. vom Meer
- €174.970
Übersicht
- Einfamilienhaus
- 3
- 87 m²
- 2026
Beschreibung
Attraktives Baugrundstück mit Neubau-Ferienhaus in Kršan, Istrien
In ruhiger und dennoch zentraler Lage von Kršan erwartet Sie dieses attraktive Angebot: Ein ebenes Baugrundstück mit ca. 463 m² Fläche und regelmäßiger Form – ideal für Ihr zukünftiges Eigenheim oder eine Ferienimmobilie. Das Ortszentrum mit Post, Geschäften und Kindergarten erreichen Sie in nur etwa 200 Metern, die traumhaften Strände der istrischen Ostküste sind ca. 10 Minuten entfernt.
Zum Verkauf steht ein modernes Neubau-Ferienhaus, das Ihnen eine perfekte Kombination aus Erholung, Komfort und guter Infrastruktur bietet. Das Grundstück ist voll erschlossen, Strom- und Wasseranschlüsse sind bereits vorhanden.
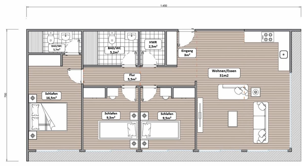
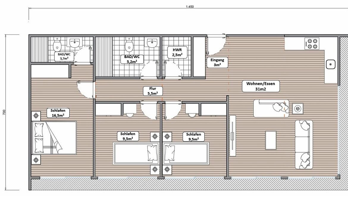
Das Haus verfügt – je nach gewähltem Haustyp – über eine durchdachte Raumaufteilung. Aktuell geplant sind ca. 87 m² Wohnfläche mit drei Schlafzimmern, zwei modernen Badezimmer, sowie einem offenen Wohn- und Essbereich mit hochwertiger, voll ausgestatteter Küche.
Für ein angenehmes Raumklima sorgt eine Klimaanlage mit Heiz- und Kühlfunktion. Die Immobilie wird bezugsfertig übergeben (ohne Möbel) und eignet sich sowohl zur Eigennutzung als auch hervorragend zur Ferienvermietung.
Im Gesamtpreis enthalten ist das schlüsselfertige Haus inklusive Grundstück (ca. 500 m²) sowie alle Anschlüsse.
Auf Wunsch kann eine Möblierung gegen Aufpreis übernommen werden.
Optional realisieren wir für Sie Carport, Zaunanlagen, Garten- und Landschaftsgestaltung sowie einen Swimmingpool.
Als zugelassener Versicherungs- und Finanzmakler bieten wir Ihnen zudem maßgeschneiderte Finanzierungslösungen über deutsche und kroatische Banken an.
Unsere weiteren Dienstleistungen für Sie aus unserem Netzwerk
Deutschsprachige Rechtsanwalt- und Notarkanzleien
Finanzierungsvermittlung Deutsch/Kroatische Banken
Zugelassener Versicherungsmakler Deutschland/Kroatien
Immobilien von Umag bis Dubrovnik.
Erledigung aller Behördengänge wie OIB, Wohnsitz, Strom, Wasser, Telefon etc
Örtliche Handwerker Vermittlung für Renovierungen und Sanierungen.
Hausmeister-Tätigkeiten mit Komplett-Service bei Vermietung an Feriengäste.
Objekt- und Verwaltungsservice.
Handwerkerservice vor Ort. Alles aus einer Hand
Komplettübernahme von Renovierung und Sanierungen
Elektriker, Heizungs- und Klimabauinstallation
Maler, Bodenleger
Garten und Landschaftsbauer
Küchen-Möbel-Montage
Pflasterer, Steinleger
Kršan in Istrien ist ein ruhiger, authentischer Ort mit historischem Charme und herrlicher Natur. Geprägt von mediterraner Landschaft, bietet er Erholung fernab des Massentourismus. Die Nähe zu den Stränden der Ostküste sowie gute Infrastruktur machen Kršan ideal für Urlaub, Wohnen oder eine attraktive Immobilieninvestition.
Adresse
Öffnen in Google Maps- Ort: Krsan
- PLZ: 52232
- Area: Istrien
- Land: Kroatien
Details
Updated on April 6, 2026 at 3:19 pm- Property ID HZ230172
- Preis €174.970
- Wohnfläche 87 m²
- Grundstücksfläche 463 m²
- Schlafzimmer 3
- Zimmer 4
- Year Built 2026
- Immobilienart Einfamilienhaus
- Status Zu Verkaufen
Zusätzliche Details
- Lage/Gebiet Wohngebiet
- Käuferprovision 3,57
- MwSt.-Satz 19 %
- Wohnfläche 87 m²
- Befeuerung Elektro
- Bodenbelag Fliesen
- Küche Offene Küche














