Neubau Einfamilienhaus in Polje zu verkaufen.
- €162.850
Übersicht
- Einfamilienhaus
- 65 m²
- 2026
Beschreibung
Neubau-Ferienhaus auf der Insel Krk – Ruhe, Komfort und Meeresnähe in Polje
Zum Verkauf steht ein bezauberndes Neubau-Ferienhaus im idyllischen Ort Polje auf der Insel Krk. In ruhiger Lage und nur ca. 2 km von der Küstenstadt Šilo mit ihren wunderschönen Stränden entfernt, genießen Sie hier die perfekte Kombination aus Erholung und guter Infrastruktur. Das Grundstück ist voll erschlossen – Strom- und Wasseranschlüsse sind vorhanden. Die Zufahrt erfolgt über eine asphaltierte Straße, die letzten Meter sind geschottert.
Haustyp und Grösse lassen sich nach Ihren Wünschen und Vorstellungen anpassen.
In dem Totalpreis ist das bezugsfertige Haus inkl. Grundstück mit 500m², Wasser- und Stromanschluss inklusive. (Ohne Möbel).
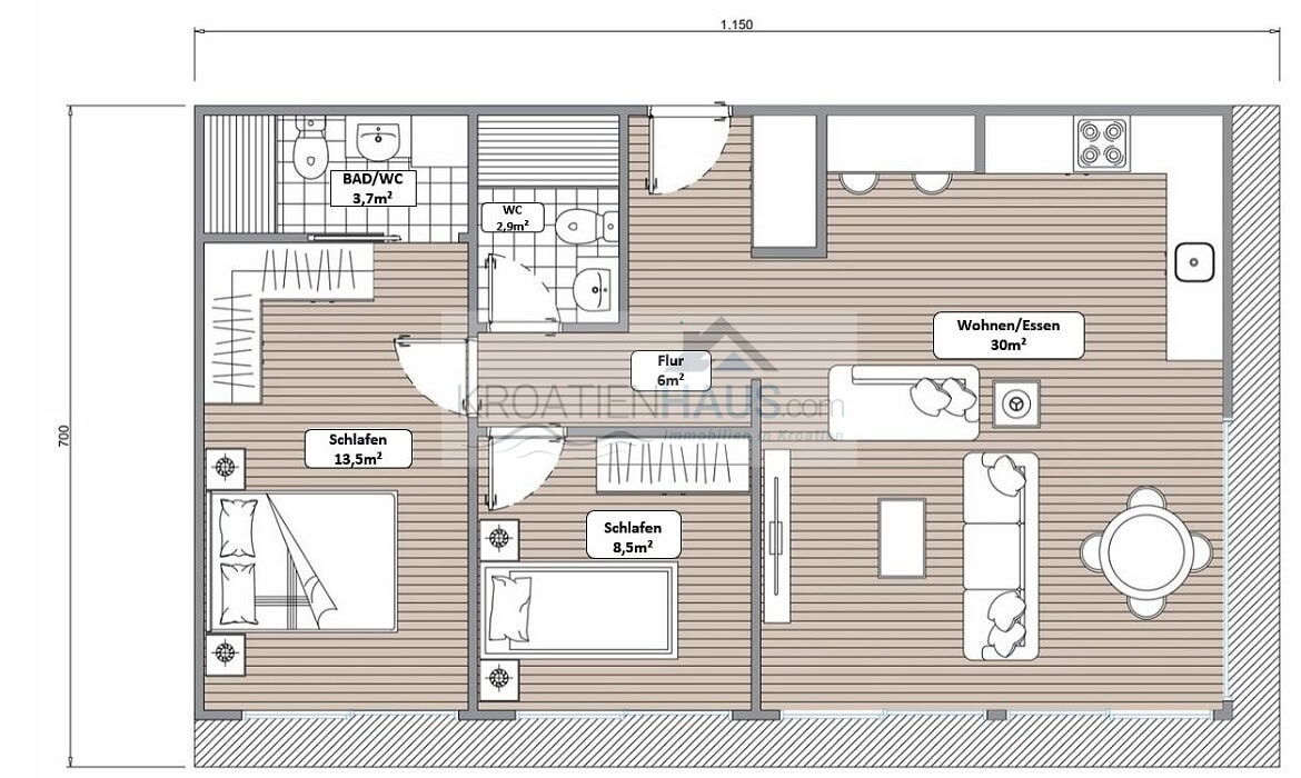
Das Haus bietet eine Wohn- und Nutzfläche von ca. 65 m² und ist bezugsfertig ausgestattet. Es verfügt über zwei gemütliche Schlafzimmer, ein modernes Badezimmer sowie ein zusätzliches Gäste-WC. Der offene Wohn- und Essbereich mit integrierter, hochwertiger Küche schafft eine einladende Wohnatmosphäre. Die Küche ist komplett ausgestattet mit Backofen, Ceran-Kochfeld, Geschirrspüler sowie Kühl- und Gefrierkombination.
Für angenehmes Raumklima sorgt eine Klimaanlage mit Heiz- und Kühlfunktion.
Dank vorhandener Anschlüsse können Sie die Immobilie sofort beziehen oder als attraktive Ferienimmobilie vermieten. Das Haus überzeugt durch eine hochwertige Bauweise und liebevolle Details – ideal für entspannte Tage an der kroatischen Adriaküste.
Auf Wunsch ist die Übernahme inklusive Möblierung gegen Aufpreis möglich.
Ein echtes Schmuckstück in der Kvarner Bucht – perfekt für alle, die Ruhe, Sonne und die Nähe zum Meer suchen!
Optional realisieren wir für Sie Carport, Zaunanlagen, Garten- und Landschaftsgestaltung sowie einen Swimmingpool.
Als zugelassener Versicherungs- und Finanzmakler bieten wir Ihnen zudem maßgeschneiderte Finanzierungslösungen über deutsche und kroatische Banken an.
Polje ist ein idyllischer Ort im Inselinneren der Insel Krk und begeistert durch seine ruhige, naturnahe Lage abseits des Trubels der Küstenorte. Umgeben von grünen Hügeln, Weinbergen und mediterraner Vegetation genießen Sie hier absolute Entspannung und Privatsphäre. Gleichzeitig sind die beliebten Badeorte Šilo, Malinska und die zahlreichen Strände der Insel in wenigen Autominuten erreichbar. Einkaufsmöglichkeiten, Restaurants und Freizeitangebote befinden sich in der näheren Umgebung. Die gute Verkehrsanbindung sowie die Nähe zur Krk-Brücke machen Polje besonders attraktiv. Ein idealer Standort für alle, die Erholung, Natur und dennoch die Nähe zum Meer schätzen.
Unsere weiteren Dienstleistungen für Sie aus unserem Netzwerk
Deutschsprachige Rechtsanwalt- und Notarkanzleien
Finanzierungsvermittlung Deutsch/Kroatische Banken
Zugelassener Versicherungsmakler Deutschland/Kroatien
Immobilien von Umag bis Dubrovnik.
Erledigung aller Behördengänge wie OIB, Wohnsitz, Strom, Wasser, Telefon etc
Örtliche Handwerker Vermittlung für Renovierungen und Sanierungen.
Hausmeister-Tätigkeiten mit Komplett-Service bei Vermietung an Feriengäste.
Objekt- und Verwaltungsservice.
Handwerkerservice vor Ort. Alles aus einer Hand
Komplettübernahme von Renovierung und Sanierungen
Elektriker, Heizungs- und Klimabauinstallation
Maler, Bodenleger
Garten und Landschaftsbauer
Küchen-Möbel-Montage
Pflasterer, Steinleger
Adresse
Öffnen in Google Maps- Ort: Polje
- State/county: Kvarner Region
- PLZ: 51515
- Land: Kroatien
Details
Updated on April 6, 2026 at 12:49 p.m.- Property ID HZ230168
- Preis €162.850
- Wohnfläche 65 m²
- Grundstücksfläche 500 m²
- Zimmer 3
- Year Built 2026
- Immobilienart Einfamilienhaus
- Status Zu Verkaufen
Zusätzliche Details
- Lage/Gebiet Wohngebiet
- Käuferprovision 3,57
- MwSt.-Satz 19 %
- Wohnfläche 65 m²
- Befeuerung Elektro























