Bungalow Baderna bei Porec
- €249.500
Übersicht
- Haus
- 3
- 1
- 77 m²
- 2025
Beschreibung
In der ruhigen und ländlichen Umgebung der istrischen Halbinsel, nur wenige Kilometer von der Küste und der historischen Stadt Poreč entfernt, steht in Baderna ein attraktives Baugrundstück zum Verkauf. Mit einer Gesamtfläche von 741 m² liegt es innerhalb des offiziellen Baugebiets und bietet somit beste Voraussetzungen für die Verwirklichung eines Einfamilienhauses oder eines Ferienobjekts mit touristischem Potenzial.
Das Grundstück überzeugt durch seine hervorragende Lage: eine direkte Zufahrt von der asphaltierten Straße ist gegeben, und die gesamte notwendige Infrastruktur – wie Wasser, Strom und Abwasser – befindet sich unmittelbar am Rand des Grundstücks.
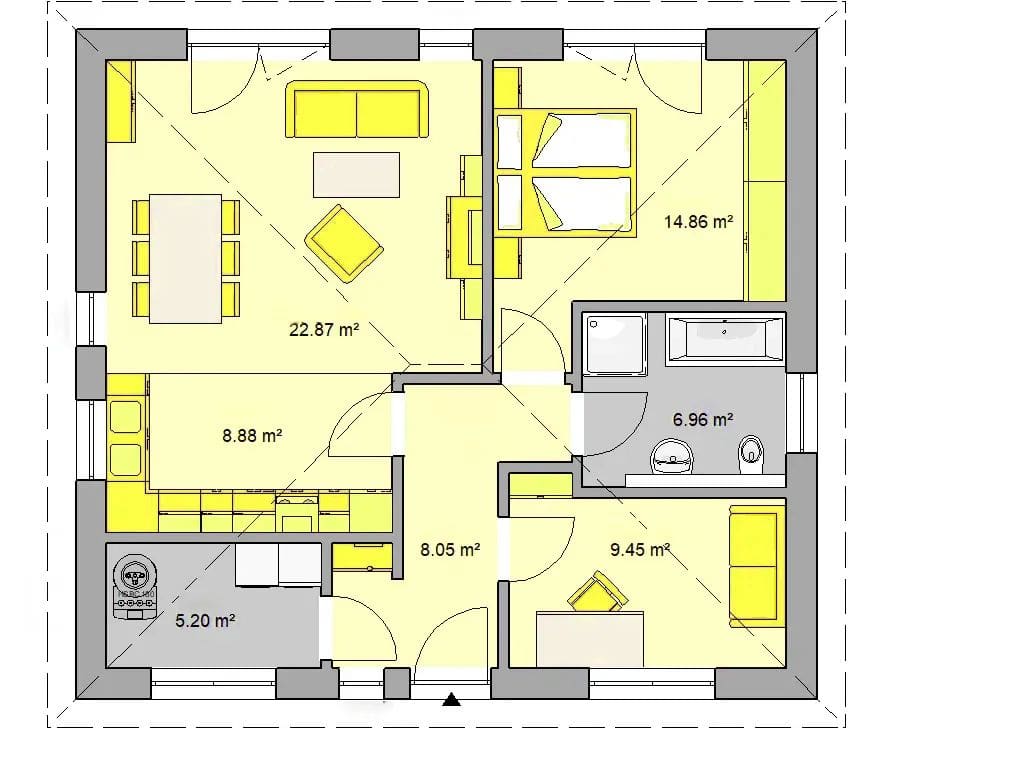
Ein geplanter Bungalow fügt sich harmonisch in die Umgebung ein. Von außen begeistert das Haus durch sein kompaktes Walmdach und zahlreiche bodentiefe Fenster, die eine lichtdurchflutete Atmosphäre schaffen. Bereits beim Eintreten entsteht ein Gefühl von Geborgenheit und Offenheit.
Alle Räume sind klimatisiert. In allen Räumen werden Bodenfliesen verlegt. Grosse Sonnenterrasse mit über 20m².
Im Inneren des Hauses kann die Raumaufteilung individuell nach eigenen Wünschen gestaltet werden. Besonders hervorzuheben ist der großzügige, offene Wohn- und Essbereich mit über 30 m² Fläche. Die offene Küche ist direkt mit dem Esszimmer verbunden – perfekt für gesellige Abende mit Familie und Freunden. Die gemütliche Couchzone lädt zum Entspannen ein, ob bei einem guten Buch oder einem Filmabend.
Große Fensterflächen bieten nicht nur viel Licht, sondern auch herrliche Ausblicke in den Garten. Über eine Doppeltür gelangt man ebenerdig auf die Terrasse und in den Außenbereich – ideal für warme Sommerabende oder ein Frühstück im Freien.
Dieses Grundstück ist eine seltene Gelegenheit, sich in Istrien den Traum vom Eigenheim in Meeresnähe zu erfüllen.
Unsere weiteren Dienstleistungen für Sie aus unserem Netzwerk
Deutschsprachige Rechtsanwalt- und Notarkanzleien
Finanzierungsvermittlung Deutsch/Kroatische Banken
Zugelassener Versicherungsmakler Deutschland/Kroatien
Immobilien von Umag bis Dubrovnik.
Erledigung aller Behördengänge wie OIB, Wohnsitz, Strom, Wasser, Telefon etc
Örtliche Handwerker Vermittlung für Renovierungen und Sanierungen.
Hausmeister-Tätigkeiten mit Komplett-Service bei Vermietung an Feriengäste.
Objekt- und Verwaltungsservice.
Handwerkerservice vor Ort. Alles aus einer Hand
Komplettübernahme von Renovierung und Sanierungen
Elektriker, Heizungs- und Klimabauinstallation
Maler, Bodenleger
Garten und Landschaftsbauer
Küchen-Möbel-Montage
Pflasterer, Steinleger
. Info zum Energieausweis: liegt zur Besichtigung vor
Adresse
Öffnen in Google Maps- Ort: Baderna
- PLZ: 52445
- Area: Istrien
- Land: Kroatien
Details
Updated on April 6, 2026 at 12:01 am- Property ID HZ379239
- Preis €249.500
- Wohnfläche 77 m²
- Grundstücksfläche 741 m²
- Schlafzimmer 3
- Zimmer 2
- Badezimmer 1
- Year Built 2025
- Immobilienart Haus
- Status Zu Verkaufen
Zusätzliche Details
- Wohnungsnummer 1
- Preise zuzüglich Mehrwertsteuer nein
- Käuferprovision 3,57% vom Kaufpreis (inkl. MwSt.)
- Wohnfläche 77 m²
- Balkon-/Terrassenfläche 20 m²
- Art der Ausstattung Standard
- Befeuerung Elektro
- Bodenbelag Fliesen
- Badausstattung Dusche, Fenster im Badezimmer
- Küche Einbauküche
- Ausrichtung Balkon/Terrasse Süd
- Distanz zum Strand 12,0 km
- Distanz zum Meer 12,0 km


