EFHi Kuzinici Istrien
- €470.000
Übersicht
- Einfamilienhaus
- 147 m²
- 2026
Beschreibung
iese stilvoll geplante Villa vereint modernes Wohnen mit durchdachter Funktionalität und mediterranem Flair – ideal als exklusives Eigenheim oder attraktive Ferienimmobilie.
Das Anwesen besteht aus einem zweistöckigen Haupthaus (Erdgeschoss und Obergeschoss), einem praktischen Nebengebäude sowie einem einladenden Swimmingpool. Auf dem Grundstück stehen zudem zwei Parkplätze zur Verfügung, die Komfort für Bewohner und Gäste gewährleisten.
Im Erdgeschoss des Haupthauses erwartet Sie ein großzügiger, offener Wohnbereich, in dem Küche, Esszimmer und Wohnzimmer harmonisch miteinander verbunden sind. Diese Gestaltung schafft eine helle, einladende Atmosphäre und bildet das Herzstück des Hauses. Ergänzt wird diese Ebene durch eine separate Toilette sowie einen Abstellraum.
Im Obergeschoss befinden sich drei komfortable Schlafzimmer, jeweils mit eigenem Bad. Diese Aufteilung bietet ein hohes Maß an Privatsphäre und eignet sich ideal für Familien oder die Nutzung als Ferienvilla mit gehobenem Anspruch.
Ein besonderes Highlight ist das ebenerdige Nebengebäude. Es dient in erster Linie als Sommerküche – perfekt für gesellige Stunden im Freien – und verfügt zusätzlich über ein eigenes Badezimmer sowie den Maschinenraum für den Swimmingpool.
Dieses durchdachte Gesamtkonzept verbindet Wohnkomfort, Funktionalität und Urlaubsfeeling auf ideale Weise und bietet beste Voraussetzungen für entspannte Tage unter südlicher Sonne.
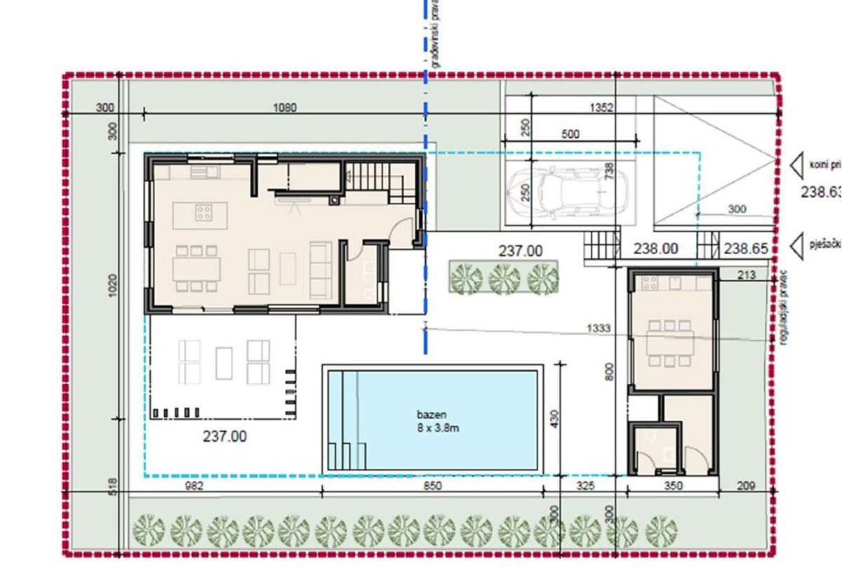
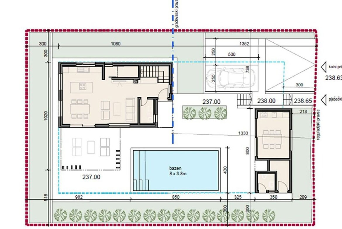
Baugrundstück für „Villa 6“ mit genehmigter Baugenehmigung für Haus/Villa und Swimmingpool – Kužinići
Zum Verkauf steht ein attraktives Baugrundstück im ruhigen und charmanten Dorf Kužinići in Istrien, Kroatien – ideal für alle, die sich den Traum einer eigenen Villa in mediterraner Umgebung erfüllen möchten.
Das Grundstück wird inklusive einer gültigen Baugenehmigung angeboten, sodass Sie direkt mit der Umsetzung Ihres Bauprojekts starten können. Geplant ist der Bau einer modernen, zweistöckigen Villa („Villa 6“), die durch eine durchdachte Raumaufteilung und hohen Wohnkomfort überzeugt.
Die Villa umfasst drei großzügige Schlafzimmer, jeweils mit eigenem Bad, und bietet damit ein hohes Maß an Privatsphäre – perfekt für Familien, Gäste oder die touristische Vermietung. Ergänzt wird das Konzept durch einen Außen-Swimmingpool, der das mediterrane Lebensgefühl unterstreicht und für entspannte Stunden sorgt.
Die Lage in Kužinići zeichnet sich durch Ruhe, Naturverbundenheit und eine angenehme Distanz zu touristischen Hotspots aus, während die istrische Küste sowie Einkaufsmöglichkeiten und Restaurants gut erreichbar sind.
Dieses Angebot vereint eine hervorragende Lage, Planungssicherheit durch die bestehende Genehmigung und ein attraktives Villenkonzept – eine ideale Gelegenheit für Investoren oder Privatkäufer.
Besichtigungen erfolgen nur mit einem vorab geschlossenen Maklervertrag/Besuchsauftrag. Die Maklerprovision ist fällig bei notariell beglaubigtem Kaufvertrag. Die Besichtigungen sind kostenfrei.
Im Rahmen der EU-Datenschutzrichtlinie und zum Schutz der Eigentümer können wir die exakten Standorte erst mit Vereinbarung des Makler-/Besuchsauftrages, aus dem Ihre Identifikation hervorgeht, sowie bei Vereinbarung des Besichtigungstermines bekannt geben.
Beachten Sie bitte, dass jederzeit ein Zwischenverkauf stattfinden kann.
Die Maklerprovision beträgt 3,57% inkl. 19% gesetzl. MwSt. vom Kaufpreis. Mindestens aber 2.499€ inkl. 19% gesetzl. MwSt. Alle Angaben im Exposé sind freibleibend und wurden gemäß Angaben vom Eigentümer in das Exposé übernommen.
Adresse
Öffnen in Google Maps- Ort: Kužinići
- State/county: Istrien
- PLZ: 52206
- Land: Kroatien
Details
Updated on April 26, 2026 at 12:01 am- Property ID HZ231046
- Preis €470.000
- Wohnfläche 147 m²
- Grundstücksfläche 500 m²
- Zimmer 6
- Year Built 2026
- Immobilienart Einfamilienhaus
- Status Zu Verkaufen
Zusätzliche Details
- Lage/Gebiet Wohngebiet
- Käuferprovision 3,57
- Wohnfläche 147 m²
- Befeuerung Elektro
























