EFH Zemunik Donji bei Zadar
- €99.500
Übersicht
- Einfamilienhaus
- 2
- 1
- Nein
- 39 m²
- 2025
Beschreibung
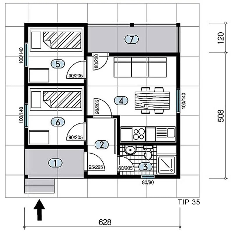
In Zemunik Donji, nur wenige Kilometer von Zadar entfernt, entsteht ein modernes Einfamilienhaus, das sich ideal für Familien, Paare oder Ferienhausbesitzer eignet. Das Haus verfügt über zwei komfortable Schlafzimmer, ein Badezimmer mit Dusche und WC sowie eine großzügige, teils überdachte Terrasse, die zum Entspannen im Freien einlädt. Alle Räume sind angenehm klimatisiert.
Das gesamte Objekt ist bezugsfertig – im Preis inbegriffen sind sämtliche Elektrikinstallationen, hochwertiger Bodenbelag (Fliesen in allen Räumen), ein voll ausgestattetes Bad sowie sämtliche Architektenleistungen und die Bauleitung. Das Grundstück bietet ausreichend Platz für Garten, Parkplatz oder eventuelle Erweiterungen.
Besonders attraktiv ist die Lage: Zemunik Donji liegt in ruhiger Umgebung, bietet aber gleichzeitig eine gute Anbindung an Zadar, den Flughafen und die Adria. Ideal für Menschen, die Natur und Meeresnähe kombinieren möchten.
Nicht im Preis enthalten sind Küche, Möbel, Dekoration sowie die Bepflanzung (wie Bäume, Büsche oder andere Pflanzen). So haben Käufer die Möglichkeit, ihr neues Zuhause nach eigenen Vorstellungen individuell zu gestalten.
Ein sofort beziehbares Haus in attraktiver Lage mit solider Ausstattung – perfekt für alle, die ein unkompliziertes, modernes Leben in Kroatien suchen.
Unsere weiteren Dienstleistungen für Sie aus unserem Netzwerk
Deutschsprachige Rechtsanwalt- und Notarkanzleien
Finanzierungsvermittlung Deutsch/Kroatische Banken
Zugelassener Versicherungsmakler Deutschland/Kroatien
Immobilien von Umag bis Dubrovnik.
Erledigung aller Behördengänge wie OIB, Wohnsitz, Strom, Wasser, Telefon etc
Örtliche Handwerker Vermittlung für Renovierungen und Sanierungen.
Hausmeister-Tätigkeiten mit Komplett-Service bei Vermietung an Feriengäste.
Objekt- und Verwaltungsservice.
Handwerkerservice vor Ort. Alles aus einer Hand
Komplettübernahme von Renovierung und Sanierungen
Elektriker, Heizungs- und Klimabauinstallation
Maler, Bodenleger
Garten und Landschaftsbauer
Küchen-Möbel-Montage
Pflasterer, Steinleger
. Info zum Energieausweis: liegt zur Besichtigung vor
Adresse
Öffnen in Google Maps- Adresse: K.A. K.A.
- Ort: Zemunik Donji
- PLZ: 23222
- Area: Dalmatien
- Land: Kroatien
Details
Updated on Juli 4, 2025 at 1:13 pm- Property ID HZ379238
- Preis €99.500
- Wohnfläche 39 m²
- Grundstücksfläche 828 m²
- Schlafzimmer 2
- Zimmer 2
- Badezimmer 1
- Garage Nein
- Year Built 2025
- Immobilienart Einfamilienhaus
- Status Zu Verkaufen
Zusätzliche Details
- Lage/Gebiet Siedlung
- Preise zuzüglich Mehrwertsteuer nein
- Käuferprovision 3,57% vom Kaufpreis (inkl. MwSt.)
- Hinweis zur Courtage Besichtigungen erfolgen nur mit einem vorab geschlossenen Maklervertrag/Besuchsauftrag. Die Maklerprovision ist fällig bei notariell beglaubigtem Kaufvertrag. Die Besichtigungen sind kostenfrei. | Beachten Sie bitte, dass jederzeit ein Zwischenverkauf stattfinden kann. | Die Maklerprovision beträgt 3,57% inkl. 19% gesetzl. MwSt. vom Kaufpreis. Mindestens aber 2.499Euro inkl. 19% gesetzl. MwSt. Alle Angaben im Exposé sind freibleibend und wurden gemäß Angaben vom Eigentümer in das Exposé übernommen. | Im Rahmen der EU-Datenschutzrichtlinie und zum Schutz der Eigentümer können wir die exakten Standorte erst mit Vereinbarung des Makler-/Besuchsauftrages, aus dem Ihre Identifikation hervorgeht, sowie bei Vereinbarung des Besichtigungstermines bekannt geben.
- Wohnfläche 39 m²
- Balkon-/Terrassenfläche 15 m²
- Art der Ausstattung Standard
- Befeuerung Elektro
- Bodenbelag Fliesen
- Badausstattung Dusche, Fenster im Badezimmer
- Ausrichtung Balkon/Terrasse Süd
- Stellplatzart Freiplatz
- Zustand Erstbezug
- Distanz zum Strand 13,0 km
- Distanz zum Meer 13,0 km


