EFH für 389.000€ in Crikvenica. Schlüsselfertig. Meerblick.
- €389.000
EFH für 389.000€ in Crikvenica. Schlüsselfertig. Meerblick.
- €389.000
Übersicht
- Einfamilienhaus
- 4
- 2
- Nein
- 160 m²
- 2023
Beschreibung
Das modern gestaltete Kubus-Haus in Crikvenica bietet nicht nur eine klare Architektur, sondern auch höchsten Wohnkomfort für seine Bewohner.
Im Erdgeschoss des Hauses erstrecken sich großzügige, gemeinschaftliche Räume, die durch ihre offene Gestaltung ein helles und einladendes Ambiente schaffen. Große Fensterfronten verleihen dem gesamten Gebäude einen luftigen Charakter. Im Obergeschoss erstreckt sich auf etwa 77 m² der private Bereich des Hauses, der den Bewohnern Rückzugsmöglichkeiten bietet. Hier befinden sich zwei Kinderzimmer mit einem gemeinsamen Bad sowie der großzügige Elternbereich mit Schlafzimmer, integrierter Ankleide und einem separaten Badezimmer.
Das Haus bietet von seinem Grundstück aus einen wunderschönen Panoramablick auf das Meer und die Insel Krk. Die Entfernung zum Meer beträgt 1,8 Kilometer, was zu Fuß erreichbar ist.
Die Immobilie in Crikvenica steht als Villa zum Verkauf und ist für 389.000 Euro erhältlich. Sie bietet modernen Wohnkomfort gepaart mit einer attraktiven Architektur und einer privilegierten Lage mit Meerblick.
Details zur Ausstattung der Immobilie sind spezifischer und sollten bei Interesse direkt erfragt werden.
Wir bieten eine umfassende Immobilienversicherung in Kroatien an, die Ihr Eigentum auch gegen Elementar- und Erdbebenschäden schützt. Besuchen Sie www.kroatienversicherung.com für weitere Informationen und sichern Sie sich den Schutz Ihrer Investition.
Ausstattung
Anzahl Zimmer: 3
Anzahl Schlafzimmer: 4
Badezimmer: 1
Gäste-WC: 1
Immobilie
Wohnfläche: 160 m²
Garten Terrasse: 572 m²
Stockwerke: Erdgeschoss/Obergeschoss
Doppelgarage
Swimming-Pool
Gesamtfläche: 160,59 m²
Erdgeschoss
Wohnen/Essen
37,30 m²
Büro/Gast
15,05 m²
Kochen
10,44 m²
WC
2,88 m²
Flur
10,64 m²
Technik
7,50 m²
Doppelgarage
30,19 m²
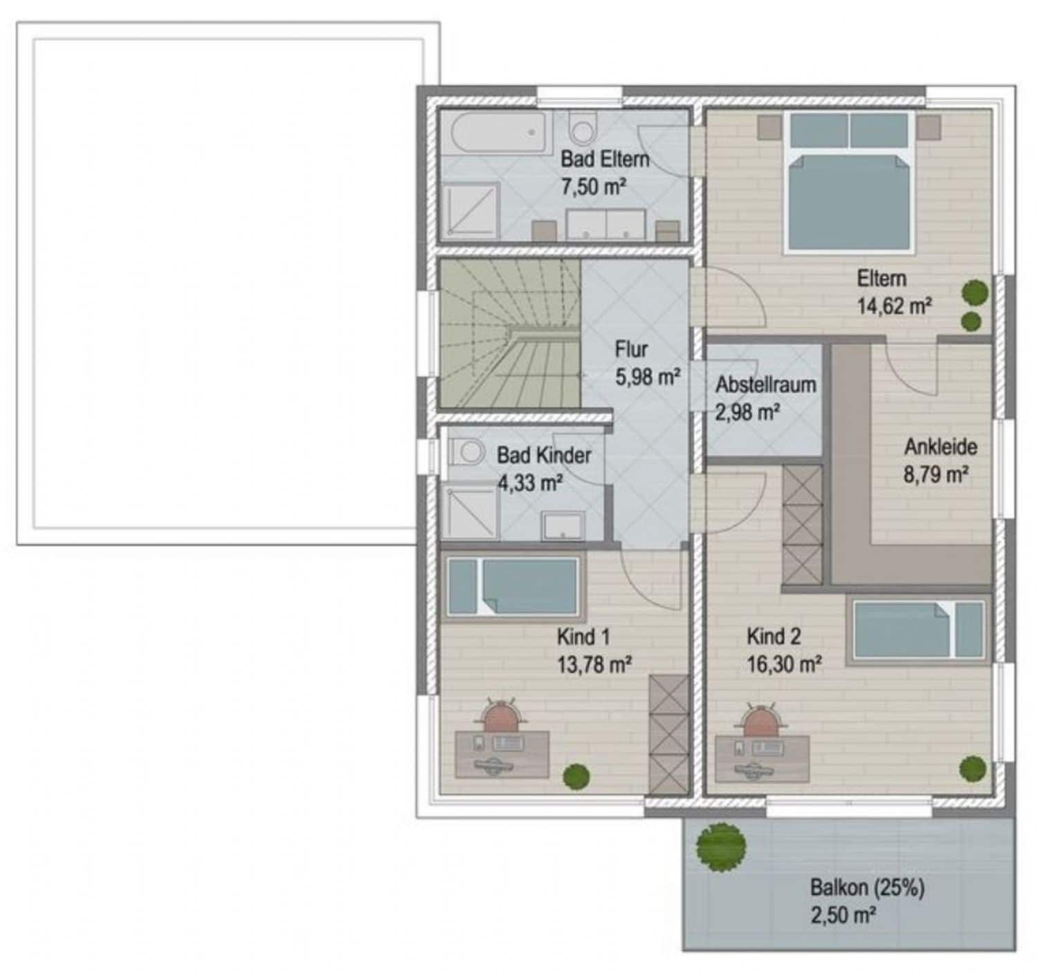
Dachgeschoss
Flur
5,98 m²
Bad Eltern
7,50 m²
Bad Kinder
4,33 m²
Eltern
14,62 m²
Ankleide
8,79 m²
Abstellraum
2,98 m²
Kind 1
13,78 m²
Kind 2
16,30 m²
Balkon
2,50 m²
Anschluss an öffentliche Versorger Strom/Wasser
3 fach Isolierglas WERU Deutsches Markenfabrikat
Aussen-und Innentüren von RORO
Sanitärelemente von Villeroy&Boch
Armaturen von Hans Grohe
Steckdosen Lichtschalter von Jung
Nobilia Küche mit Geräten wahlweise von Gorenje oder Bosch
Holzofen
Klimageräte von Mitsubishi
Optional mit Swimming-Pool
Schlüsselfertige/Bezugsfertige Erstellung
Auf Wunsch inkl. Möblierung
Beratung/Bemusterung in unserem Ausstelungscenter in Obersülzen
Deutschsprachige Bauleitung
Referenzen National und International
Referenzobjekte in Pazin, Poreč, Rovinj, Baška, Žminj
Besichtigungen erfolgen nur mit einem vorab geschlossenen Maklervertrag/Besuchsauftrag. Die Maklerprovision ist fällig bei notariell beglaubigtem Kaufvertrag. Die Besichtigungen sind kostenfrei.
Beachten Sie bitte, dass jederzeit ein Zwischenverkauf stattfinden kann.
Die Maklerprovision beträgt 3,57% inkl. 19% gesetzl. MwSt. vom Kaufpreis. Mindestens aber 2.499 Euro inkl. 19% gesetzl. MwSt. Alle Angaben im Exposé sind freibleibend und wurden gemäß Angaben vom Eigentümer in das Exposé übernommen.
Im Rahmen der EU-Datenschutzrichtlinie und zum Schutz der Eigentümer können wir die exakten Standorte erst mit Vereinbarung des Makler-/Besuchsauftrages, aus dem Ihre Identifikation hervorgeht, sowie bei Vereinbarung des Besichtigungstermines bekannt geben.
Versicherungsservice
Wir versichern Ihre Immobilie auch gegen Erdbeben/Elementar.
Kroatienversicherung.com ist Ihr Partner für einen vollumfänglichen Versicherungsschutz. Unser exklusiver, persönlicher und umfangreicher Service wird Sie überzeugen. Egal ob Haus, Vorsorge, Motorboot oder Krankenversicherung. Wir haben für Sie die passende Versicherung. Nutzen Sie unser professionelles Netzwerk mit Erfahrung, Know-how und Referenzen gerne auf Anfrage.
Finanzierungsservice
Finanzierung in Deutschland bis zu 200.000 Euro ohne Grundbucheintrag möglich.
Höhere Summen mit geringem Eigenkapital ebenfalls möglich. Mehr Informationen auf Anfrage.
Ebenso ein weiteres Sonderkonzept für Finanzierungen/Investitionen über eine kroatische Bank.
Die komplette Beratung und Abwicklung Ihrer benötigten Finanzierung erfolgt auf/in Deutsch.
Unsere weiteren Dienstleistungen für Sie aus unserem Partner-Netzwerk
Deutschsprachige Rechtsanwalt- und Notarkanzleien
Über 1.000 Objekte im Portfolio.
Von Umag bis Dubrovnik.
Erledigung aller Behördengänge wie OIB, Wohnsitz, Strom, Wasser, Telefon etc.
Versicherungsvermittlung und Betreuung für Ihre kroatische Immobilie auf/in Deutsch.
Örtliche Handwerker Vermittlung für Renovierungen und Sanierungen.
Hausmeister-Tätigkeiten mit Komplett-Service bei Vermietung an Feriengäste.
Objekt- und Verwaltungsservice.
Handwerkerservice vor Ort. Alles aus einer Hand
Komplettübernahme von Renovierung und Sanierungen
Elektriker, Heizungs- und Klimabauinstallation
Maler, Bodenleger
Garten und Landschaftsbauer
Küchen-Möbel-Montage
Pflasterer, Steinleger
. Info zum Energieausweis: liegt zur Besichtigung vor
Adresse
Öffnen in Google Maps- Adresse: K.A. K.A.
- Ort: Crikvenica
- PLZ: 51260
- Area: Kvarner Bucht
- Land: Kroatien
Details
Updated on Dezember 15, 2023 at 7:52 pm- Property ID HZEI005
- Preis €389.000
- Wohnfläche 160 m²
- Schlafzimmer 4
- Badezimmer 2
- Garage Nein
- Year Built 2023
- Immobilienart Einfamilienhaus
- Status Zu Verkaufen
Zusätzliche Details
- Heizungsart Fußbodenheizung
- Lage/Gebiet Stadtrand
- Anzahl Etagen 1,0
- Preise zuzüglich Mehrwertsteuer nein
- Käuferprovision 3,57% vom Kaufpreis (inkl. MwSt.)
- Hinweis zur Courtage Besichtigungen erfolgen nur mit einem vorab geschlossenen Maklervertrag/Besuchsauftrag. Die Maklerprovision ist fällig bei notariell beglaubigtem Kaufvertrag. Die Besichtigungen sind kostenfrei. | Die Maklerprovision beträgt 3,57% inkl. 19% gesetzl. MwSt. vom Kaufpreis. Mindestens aber 2.499Euro inkl. 19% gesetzl. MwSt.
- Wohnfläche 160 m²
- Separate WCs 1
- Balkone 1
- Terrassen 1
- Gartenfläche 572 m²
- Art der Ausstattung gehoben
- Befeuerung Elektro, Holz-Hackschnitzel
- Bodenbelag Fliesen
- Badausstattung Dusche, Fenster im Badezimmer, Bidet
- Küche Offene Küche
- Ausrichtung Balkon/Terrasse Süd
- Stellplatzart Garage, Freiplatz
- Zustand Erstbezug
- Distanz zum Strand 1,8 km
- Distanz zum Meer 1,8 km

































